Квартира 64 м2, г.Тюмень
«Евротрешка» находится в ЖК «Преображенский» г. Тюмень.
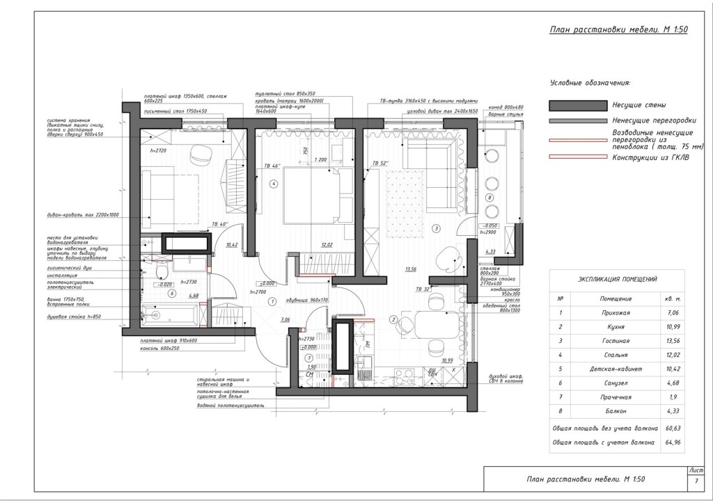
Изначальные данные от застройщика устраивали заказчиков (молодая пара) и позволили обойтись практически без перепланировки.
В квартире получилось организовать достойные места хранения в каждой комнате. Маленький СУ пожертвован под хозяйственную комнату, где расположилось постирочное и гладильное оборудование. Кабинет с помощью декора легко преображается в детскую.
Встроенная мебель выполнена на заказ. Бюджет на отделочные материалы и мебель $21000.
Планировка

Кухня
Гостиная
Спальня
Детская-кабинет
Прихожая
Санузел
Прачечная
Балкон
Коллажи к проекту






































