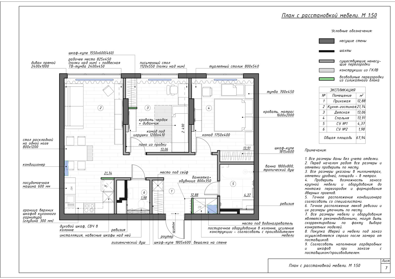
Квартира 68 м2, г. Тюмень.
Квартира для семьи с двумя детьми.
Планировка

Прихожая


Гостиная





Кухня






Коллажи к проекту
360 Room tour
Квартира 68 м2, г. Тюмень.
Квартира для семьи с двумя детьми.
Планировка

Прихожая


Гостиная





Кухня






Коллажи к проекту
360 Room tour