Дом 150,1 м2, г. Тюмень.
Дом для семьи с тремя детьми
Планировка — два этажа
Прихожая-столовая
Гостиная
Кухня
Холлы
Детская
Подростковая
Спальня и гардероб
Спальня
Санузел
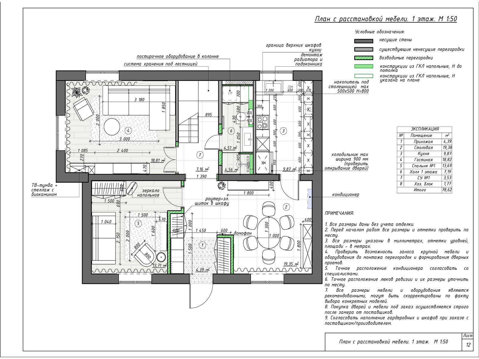
Дом 150,1 м2, г. Тюмень.
Дом для семьи с тремя детьми
Планировка — два этажа
Прихожая-столовая
Гостиная
Кухня
Холлы
Детская
Подростковая
Спальня и гардероб
Спальня
Санузел